Young Hall
Deluxe Apartments: 2 resident per units
» Featuring 24 popular apartments
Location
Young Hall is located next to the Griffith Community Center and is part of North Monroe Neighborhood. North Dining and the Adams Market are a
short walk.
Closest dining options
Adams Market / North Dining /Roots
Closest academic building
Wes Watkins Center
Walk time
Boone Pickens Stadium: 10 min
Colvin Recreation Center: 8 min
Edmon Low Library: 14 min
Theta Pond: 20 min
Photo Gallery
Young Hall: Unit Details and Rates*Floor plans may be mirror images depending on location. All dimensions are approximate and may vary from room to room. *Rates are subject to change. Rates are per person and include all utilities. Monthly rates are for comparison purposes only. Residents are billed by semester.
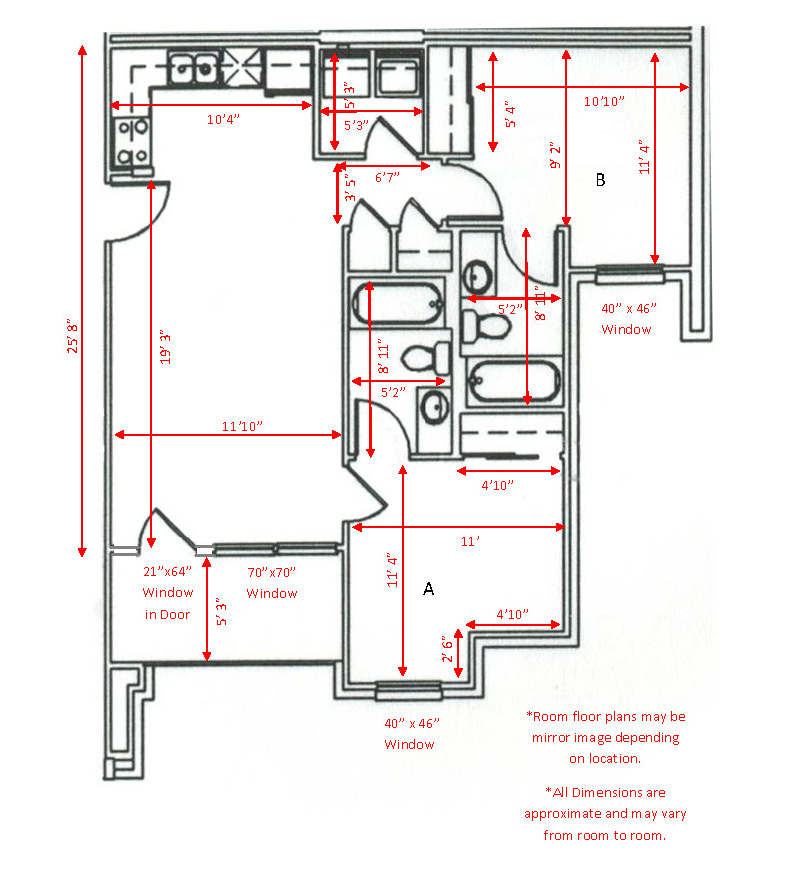
Young Hall: Floor Plan
2 bedrooms/2 bathrooms/1 living room/1 kitchen/1 utility room
Occupancy: 2 residents
Room Type Code: 2B/2B Apartment
2 private bedrooms
- 10 feet 10 inches by 11 feet 4 inches
- Closet: 2 feet by 5 feet
- Exterior window: 40 inches by 46 inches
2 private bathrooms
- 5 feet 2 inches by 8 feet 11 inches
- Shower/tub, sink and toilet
- 1 shower rod per shower/tub (Resident must provide shower liner and hooks)
1 living room
- 11 feet 10 inches by 19 feet 3 inches
- Living room window: 2,35 feet by 70 inches
1 kitchen
- 5 feet 3 inches by 10 feet 4 inches
1 utility room
- 5 feet 3 inches by 5 feet 3 inches
*Rates for 2025-2026 per person
- $1,092 per month
- $4,915 per semester
- $9,831 per academic year
2B/2B (Angled) Deluxe Apartments
2B/2B (Angled) Deluxe Apartments: A Bare Room Video
2B/2B (Square) Apartments
What's included at Young Hall
Unit Amenities
Per bedroom
- 1 bed frame and mattress (full-size)
- 1 desk and desk chair
- 1 dresser
- 1 bookcase
- 1 closet
- 1 ceiling fan
Living room
- 1 couch
- 1 easy chair
- 1 coffee table
- 1 end table
- 1 ceiling fan
Kitchen
- Sink
- Countertop
- Storage cabinets
- 1 dining table and 2 to 4 chairs
Appliances (full-size)
- 1 refrigerator (top-freezer)
- 1 electric range (stove top and oven)
- 1 vent hood
- 1 microwave
- 1 dishwasher
- 1 in-sink garbage disposal
- 1 washer/dryer set
Unit
- Balcony or patio accessible from apartment's front door
- Mini blinds
- Central heat and air conditioning
- Smoke detector and sprinkler system
Approved and prohibited personal items
Hall Amenities
Constructed: 2001
Net square footage: 22,065
Typical building occupancy: 48
Number of floors: 3
Services
- Lockable key-access to individual living unit and bedroom
- Cluster mailbox units with key-access individual mailboxes
- Desk Services provided at Griffith Community Center
- 24-hour maintenance service
- During semester breaks/holidays, halls stay open for residents to come and go.
- Pet waste stations available
Griffith Community Center
- Griffith Community Center serves Young Hall residents
- Indoor gathering spaces with recreation and entertainment areas
- Pool/ping pong tables and games
- Movie-watching area
- Outdoor patio and gathering areas with landscaped and maintained grounds
- Lots of seating and benches
- Basketball courts
- Sand volleyball courts
- Hammock poles
- BBQ grill
- Bicycle racks
About the Griffith Community Center
Technology
- Computer labs
- Remote printer station
- Wi-Fi access
- Ethernet (in most rooms)
Campus Partners
University Parking and Transportation Services



